空氣能壓縮機是制冷系統的心臟,無論是空氣源熱泵、空調、冷庫、化工制冷工藝等等工況都要有壓縮機這個重要的環節來做保障!

空氣能壓縮機接線方式
不同廠家的空氣能壓縮機其接線柱方位雖然不同,但在每個接線柱旁都標有字母;對于單相壓縮機而言,C表示公共端,R表示主繞組端,S表示付繞組端。
各繞組接線一定要按圖示方法,否則空氣能壓縮機不能正常工作,甚至燒毀單相空氣能壓縮機接線圖見圖3

單相空氣能壓縮機公共接線端C、主繞組端R、付繞組端S的判定方法:
根據單相空氣能壓縮機的主副繞組線徑、匝數不一樣其直流電阻值也不一樣的原理(主繞組C~R阻值較小,副繞組C~S阻值略大,R~S阻值是主副繞組阻值之和)。
用萬用表電阻檔,假設任一接線端子為C端,將萬用表一只表筆與假設公共端接觸,另一支表筆分別與另外兩個端子接觸,測量阻值若分別為:3.5Ω、4.2Ω,則假設正確,那么,電阻值較小的另一端為主繞組端R,電阻值略大的另一端為付繞組端S。用同樣的方法*多假定三次就可以找出公共端C、主繞組端R和付繞組端S。
單相空氣能壓縮機是3個接線點,分別是啟動繞組和運行繞組,你可以用萬用表把以上繞組區分開來,公共點找出來,啟動繞組的電阻小于運行繞組,3個點區分開來以后下一步就是接線。
記住公共點一般用字母標注為C,用零線接公共點C,用火線接電容的其中的一個點,電容的另一個點接空調壓縮機的啟動繞組的一個點,壓縮機的運行繞組的點連接到剛才一開始電容的火線上就可以了。
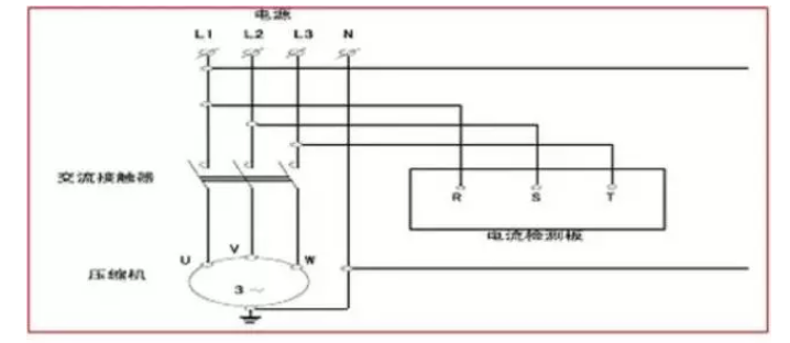
三相空氣能壓縮機接線圖見圖4:

三相380V電壓的壓縮機,將三根火線直接接在壓機接線柱上,然后通電,觀察正轉還是反轉,壓縮機反轉噪音大,振動大,正轉比較平穩,發現是反轉后要馬上斷電,然后將其中任意兩條火線換位,就是正確的接線方法了。

當前位置:

